 
  
 
  
 
  
3D skenovanie budov
  Skenovanie budov a objektov 3D skenerom
  •
  budovy
  •
  bytové domy
  •
  rodinné domy
  •
  historické stavby
  •
  sakrálne stavby
  •
  sochy a umelecké diela
  •
  priemyselné haly a areály
  •
  kultúrne domy
  •
  reštaurácie
  •
  obchody
  •
  sklady
  Využitie 3D skenovania
  3D  
  skenovanie  
  budov  
  má  
  využitie  
  najmä  
  v  
  architektúre,  
  geodézii  
  a  
  realitnej  
  oblasti,  
  kedy  
  je  
  potrebné  
  zmerať 
  jestvujúci  
  stav  
  objektov  
  pre  
  vyhotovenie  
  projektovej  
  dokumentácie,  
  k  
  pasportu  
  stavby,  
  k  
  predaju  
  nehnuteľnosti,  
  k 
  zakresleniu historickej budovy alebo ruín pred obnovou a pod.
  Architekti, projektanti, stavebné firmy, správa budov
  3D   
  Skenovaním   
  sa   
  odstraňujú   
  chyby,   
  ktoré   
  vznikajú   
  pri   
  “tradičnom”   
  meraní   
  budov,   
  kedy   
  dochádza   
  k 
  nepresnostiam  
  a  
  prílišnej  
  generalizácii  
  meraných  
  údajov.  
  Tiež  
  nastávajú  
  momenty,  
  kedy  
  sa  
  veľa  
  vecí  
  zabudne 
  odmerať. 3D skenovanie je rýchle, presné a pri spracovaní údajov je k dispozícii celý naskenovaný objekt.
  Architektom a projektantom vytvoríme reálny 3D model budovy, na ktorom môžu naďalej pracovať.
  Stavebné  
  firmy  
  a  
  investori  
  si  
  budú  
  vedieť  
  ľahko  
  skontrolovať  
  vyhotovené  
  práce  
  a  
  porovnať  
  ich  
  s  
  projektovou 
  dokumentáciou a to i bez nutnosti navštíviť stavbu.
  •
  3D sken presného jestvujúceho stavu v súradniciach S-JTSK a BpV
  •
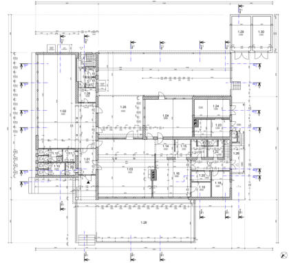
  ľahká tvorba výkresovej dokumentácie (situácia, pôdorysy, rezy, pohľady)
  •
  podloženie katastrálnej mapy, geodetických meraní a inžinierskych sietí
  •
  spracovanie vizualizácie interiéru a exteriéru
  •
  presné údaje pre správu budov
  Realitné kancelárie
  •
  presné údaje o budove alebo byte (podlahové plochy, zastavané objemy)
  •
  360° panoramatické fotografie, virtuálne prostredie, prehliadky
  •
  publikovanie a zdieľanie 360° fotografií online
  •
  realistické prezentácie pre zákazníkov
  Remeselníci, profesisti, subdodávatelia
  •
  vhodné pre špecifické zákazky na mieru
  •
  veľká rýchlosť a presnosť zameraného priestoru (napr. pri výrobe nábytku)
  •
  meranie fasád pre výrobu okien, zábradlí
  •
  úspora času a energie
  Geodeti
  •
  presné meranie aj v zle prístupných miestach
  •
  meranie priestorov bez GPS signálu
  •
  meranie bez potreby odrazných zrkadiel
  Výstupy pri 3D skenovaní
  Hlavným  
  výstupom  
  pri  
  procese  
  3D  
  skenovania  
  je  
  mračno  
  bodov  
  s  
  ktorým  
  sa  
  naďalej  
  pracuje  
  pri  
  vyhotovovaní 
  dokumentácie  
  či  
  už  
  2D  
  (pôdorys,  
  situácia,  
  pohľady)  
  alebo  
  aj  
  kompletne  
  celého  
  3D  
  BIM  
  modelu  
  budovy.  
  Mračno 
  bodov  
  je  
  možné  
  vyhotoviť  
  v  
  súradniciach  
  S-JTSK,  
  pričom  
  je  
  možné  
  podložiť  
  katastrálnu  
  mapu,  
  výkresy  
  sietí  
  a 
  pod.
  Výstupom  
  je  
  tiež  
  fotodokumentácia  
  stavby  
  pomocou  
  panoramatických  
  fotografií,  
  video  
  s  
  preletom,  
  súradnice 
  bodov, teplota povrchu meraných bodov.
  3D  
  mračno  
  bodov  
  slúži  
  pre  
  architektov  
  a  
  projektantov  
  ako  
  nepostradateľný  
  podklad  
  pre  
  vypracovanie  
  projektov 
  skutočného vyhotovenia stavieb.
  Vďaka  
  panoramatickým  
  fotografiám  
  a  
  možnosti  
  merania  
  dĺžok  
  a  
  objemov  
  priamo  
  v  
  mračne  
  bodov  
  je  
  možné  
  použiť 
  3D  
  sken  
  pre  
  profesistov,  
  stavebné  
  firmy  
  a  
  realitné  
  kancelárie  
  ako  
  pomôcku  
  pri  
  obhliadke  
  stavby  
  (alebo  
  jej 
  náhradu),  
  pretože  
  mračno  
  bodov  
  vrátane  
  fotodokumentácie  
  a  
  rozmerov  
  je  
  možné  
  zdieľať  
  elektronicky  
  alebo 
  online.
 
  
  
  
  
  
  
 
  
Mračno bodov
 
 
  
3D model budovy
 
 
  
Projektová dokumentácia
 
  
  
  
 